Mehr anzeigen zum Thema Beschreibung
Beschreibung
Mitten im Zentrum von Ostrhauderfehn erwartet Sie dieses besondere Wohnhaus, das trotz seines Ursprungs aus dem Jahr 1930 durch eine umfassende Renovierung in neuem Glanz erstrahlt. Stilvoll eingerichtet, modern ausgestattet und mit viel Liebe zum Detail gestaltet – ein echtes Zuhause mit Charakter.
Die Wohnung im Obergeschoss ist derzeit bis zum 30.11.2025 an einen solventen Mieter vermietet und erzielt eine monatliche Warmmiete von 675 €. Nach Ablauf des Mietverhältnisses steht die Wohnung zur freien Verfügung.
Das Haus bietet neben der Hauptwohnung auch eine Einliegerwohnung sowie eine separate Obergeschosswohnung – ideal für Mehrgenerationenwohnen, Vermietung oder als Kombination aus Wohnen und Arbeiten.
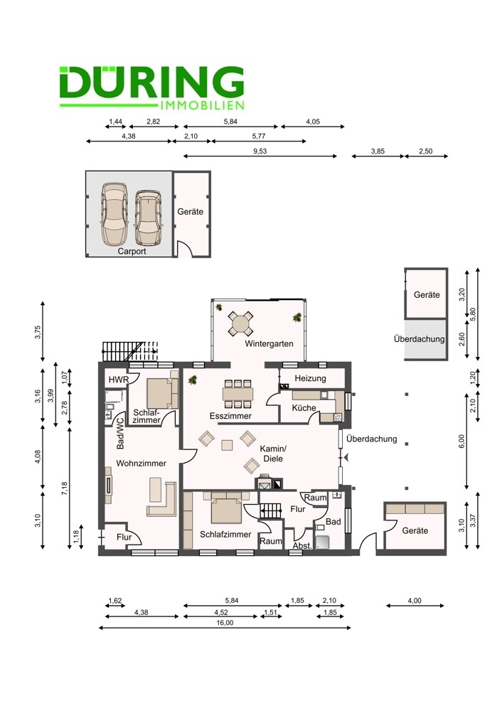
Die Hauptwohnung überzeugt mit einem großzügigen, offen gestalteten Wohn- und Essbereich, der direkt in den modernen Wintergarten (Baujahr 2020) übergeht. Große Fensterflächen holen den Garten ins Haus und schaffen eine helle, freundliche Atmosphäre.
An heißen Sommertagen sorgt eine fest installierte Klimaanlage in mehreren Bereichen des Hauses für angenehme Temperaturen und höchsten Wohnkomfort. In den Übergangszeiten kann die Anlage zudem als Luft-Luft-Wärmepumpe genutzt werden, um effizient zu heizen und den Gasverbrauch spürbar zu reduzieren.
Der große, liebevoll angelegte Garten mit einer Gesamtgrundstücksfläche von 2.591 m² lädt zum Entspannen, Gestalten und Genießen ein. Eine gemütliche Blockhütte, weitläufige Grünflächen und viel Platz für kreative Ideen machen diesen Außenbereich zu einem echten Highlight.
Ein weiterer Pluspunkt: Das Haus ist mit einem Glasfaseranschluss ausgestattet – ideal für Homeoffice, Streaming oder moderne Smart-Home-Technik.
Die Wohnung im Obergeschoss ist derzeit bis zum 30.11.2025 an einen solventen Mieter vermietet und erzielt eine monatliche Warmmiete von 675 €. Nach Ablauf des Mietverhältnisses steht die Wohnung zur freien Verfügung.
Das Haus bietet neben der Hauptwohnung auch eine Einliegerwohnung sowie eine separate Obergeschosswohnung – ideal für Mehrgenerationenwohnen, Vermietung oder als Kombination aus Wohnen und Arbeiten.
Die Hauptwohnung überzeugt mit einem großzügigen, offen gestalteten Wohn- und Essbereich, der direkt in den modernen Wintergarten (Baujahr 2020) übergeht. Große Fensterflächen holen den Garten ins Haus und schaffen eine helle, freundliche Atmosphäre.
An heißen Sommertagen sorgt eine fest installierte Klimaanlage in mehreren Bereichen des Hauses für angenehme Temperaturen und höchsten Wohnkomfort. In den Übergangszeiten kann die Anlage zudem als Luft-Luft-Wärmepumpe genutzt werden, um effizient zu heizen und den Gasverbrauch spürbar zu reduzieren.
Der große, liebevoll angelegte Garten mit einer Gesamtgrundstücksfläche von 2.591 m² lädt zum Entspannen, Gestalten und Genießen ein. Eine gemütliche Blockhütte, weitläufige Grünflächen und viel Platz für kreative Ideen machen diesen Außenbereich zu einem echten Highlight.
Ein weiterer Pluspunkt: Das Haus ist mit einem Glasfaseranschluss ausgestattet – ideal für Homeoffice, Streaming oder moderne Smart-Home-Technik.
Mehr anzeigen zum Thema Ausstattung Beschreibung
Ausstattung Beschreibung
Kunststoff-Iso-Fenster (Bj. 2002/2013/2020) (Dachfenster Holz-Iso-Fenster) // Blockhütte // Buderus Gasheizung (Baujahr 2018) // Betongeschossdecke // Kamin // Überdachte Terasse // Doppelcarport // Elektrisches Hoftor // Wintergarten (Bj. 2020) // Hochkeller // Energieeffizienzklasse C
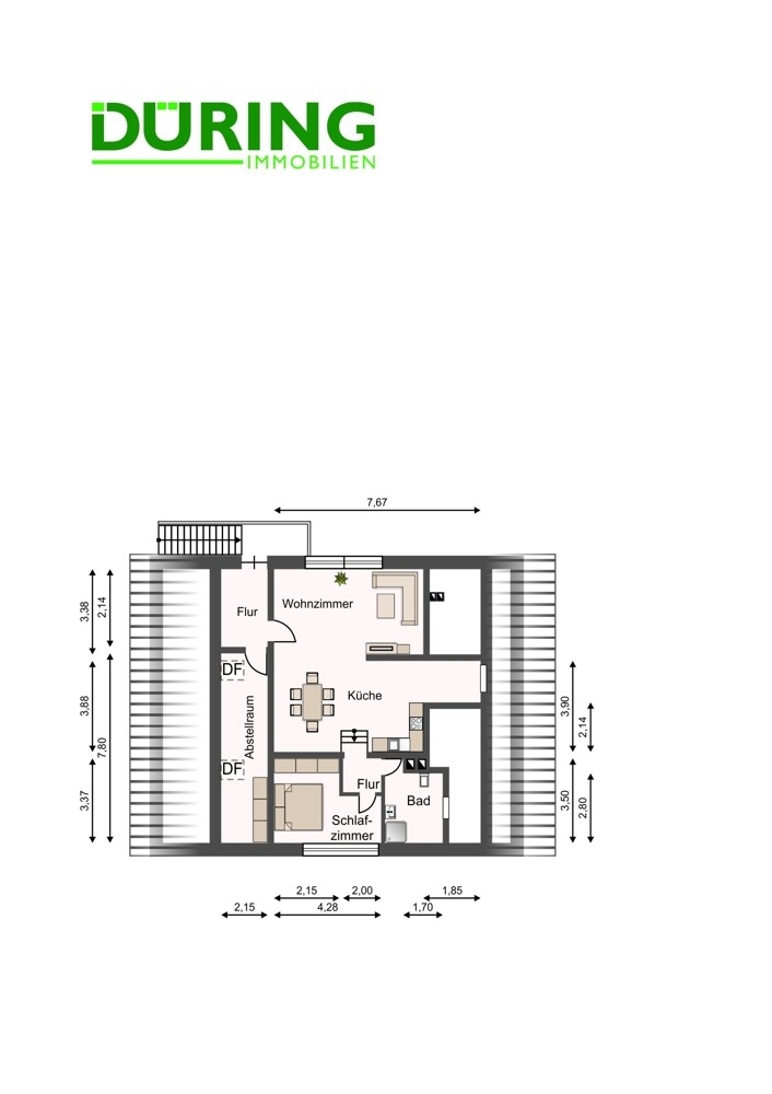
Raumaufteilung Hauptwohnung:
Wohn- und Kaminzimmer // Esszimmer // Flur // Schlafzimmer // Ankleidezimmer // Abstellkammer // Küche // HWR // Badezimmer (ebenerdige Dusche, Waschbecken, WC) // Wintergarten // Fußbodenheizung (außer im Schlafzimmer & Badezimmer)
Einliegerwohnung:
Flur // Wohn- und Esszimmer (inkl. Möglichkeit Einbau einer Küche) // Schlafzimmer // Badezimmer (ebenerdige Dusche, Waschbecken, WC) // kleiner HWR
Obergeschosswohnung:
Flur // Wohn- und Esszimmer inkl. Küche // Schlafzimmer // Badezimmer (Dusche, Waschbecken, WC) // Abstellraum
Weitere Informationen:
Die Maklerprovision wird zur Hälfte vom Käufer und zur Hälfte vom Verkäufer gezahlt. Die Grunderwerbsteuer, Notar- und Grundbuchkosten sind vom Käufer zu tragen.
Eine Reservierung des Objektes ist nur nach Besichtigung, nach Vorlage einer schriftlichen Finanzierungsbestätigung sowie mit ausdrücklicher Zustimmung und Einwilligung des Verkäufers möglich. Ein Zwischenverkauf bleibt vorbehalten. Sollten mehrere Interessenten gleichzeitig Kaufinteresse zeigen, wird der Kaufpreis ausgeboten.
Raumaufteilung Hauptwohnung:
Wohn- und Kaminzimmer // Esszimmer // Flur // Schlafzimmer // Ankleidezimmer // Abstellkammer // Küche // HWR // Badezimmer (ebenerdige Dusche, Waschbecken, WC) // Wintergarten // Fußbodenheizung (außer im Schlafzimmer & Badezimmer)
Einliegerwohnung:
Flur // Wohn- und Esszimmer (inkl. Möglichkeit Einbau einer Küche) // Schlafzimmer // Badezimmer (ebenerdige Dusche, Waschbecken, WC) // kleiner HWR
Obergeschosswohnung:
Flur // Wohn- und Esszimmer inkl. Küche // Schlafzimmer // Badezimmer (Dusche, Waschbecken, WC) // Abstellraum
Weitere Informationen:
Die Maklerprovision wird zur Hälfte vom Käufer und zur Hälfte vom Verkäufer gezahlt. Die Grunderwerbsteuer, Notar- und Grundbuchkosten sind vom Käufer zu tragen.
Eine Reservierung des Objektes ist nur nach Besichtigung, nach Vorlage einer schriftlichen Finanzierungsbestätigung sowie mit ausdrücklicher Zustimmung und Einwilligung des Verkäufers möglich. Ein Zwischenverkauf bleibt vorbehalten. Sollten mehrere Interessenten gleichzeitig Kaufinteresse zeigen, wird der Kaufpreis ausgeboten.
Mehr anzeigen zum Thema Lage
Lage
Dieses Wohnhaus befindet sich in zentraler Lage von Ostrhauderfehn – einer lebendigen Gemeinde mit hoher Lebensqualität im Herzen des südlichen Ostfrieslands.
Alle Dinge des täglichen Bedarfs befinden sich direkt vor der Haustür: Supermärkte, Bäcker, Drogerien und vielfältige Einkaufsmöglichkeiten sind fußläufig erreichbar. Auch Shoppingliebhaber kommen durch Fachgeschäfte auf ihre Kosten.
Die Immobilie liegt an einer idyllischen Kanallage, die nicht nur für entspannte Spaziergänge sorgt, sondern auch den besonderen Charme dieser Wohnlage unterstreicht.
Besonders angenehm: Spaziergänge entlang des Deiches – ideal für eine Auszeit im Grünen oder den täglichen Rundgang mit dem Hund – beginnen praktisch direkt vor der Tür.
Eine Apotheke, ein Friseursalon sowie Ärzte befinden sich in unmittelbarer Nähe – ebenso wie Kindergärten, Grundschulen und weiterführende Schulen, die alle schnell erreichbar sind.
Die zentrale, dennoch ruhige Lage bietet eine ideale Kombination aus urbanem Komfort und angenehmer Wohnatmosphäre – perfekt für Familien, Berufstätige und alle, die kurze Wege und naturnahe Erholung schätzen.
Alle Dinge des täglichen Bedarfs befinden sich direkt vor der Haustür: Supermärkte, Bäcker, Drogerien und vielfältige Einkaufsmöglichkeiten sind fußläufig erreichbar. Auch Shoppingliebhaber kommen durch Fachgeschäfte auf ihre Kosten.
Die Immobilie liegt an einer idyllischen Kanallage, die nicht nur für entspannte Spaziergänge sorgt, sondern auch den besonderen Charme dieser Wohnlage unterstreicht.
Besonders angenehm: Spaziergänge entlang des Deiches – ideal für eine Auszeit im Grünen oder den täglichen Rundgang mit dem Hund – beginnen praktisch direkt vor der Tür.
Eine Apotheke, ein Friseursalon sowie Ärzte befinden sich in unmittelbarer Nähe – ebenso wie Kindergärten, Grundschulen und weiterführende Schulen, die alle schnell erreichbar sind.
Die zentrale, dennoch ruhige Lage bietet eine ideale Kombination aus urbanem Komfort und angenehmer Wohnatmosphäre – perfekt für Familien, Berufstätige und alle, die kurze Wege und naturnahe Erholung schätzen.
Mehr anzeigen zum Thema Lage
Energieausweis
A+
< 30
A
30 – 50
B
50 – 75
C
75 – 100
D
100 – 130
E
130 – 160
F
160 – 200
G
200 – 250
H
> 250
- Nutzungsart
- Wohnen
- Baujahr lt. Energieausweis
- 2018
- Endenergieverbrauch
- 85,5 kWh/(m²a)
- Energieausweis
- Verbrauchsausweis
- Energieausweis gültig bis
- 30.03.2025
- Energieeffizienzklasse
- C
Ihre Ansprechpartnerin
Frau Kristin Henne
Düring Immobilien
- Tel.:
- 04952 / 9379-44
- E-Mail:
- kristin.henne@duering-immo.de
Untenende 40
26817 Rhauderfehn