Mehr anzeigen zum Thema Beschreibung
Beschreibung
Willkommen in Ihrem neuen Zuhause in Rhauderfehn, im Ortsteil Collinghorst!
Dieses Einfamilienhaus zur Miete, welches aktuell saniert wird, bietet Ihnen alles, was Sie sich wünschen können. Auf großzügigen ca. 1.029 m² Grundstücksgröße erstreckt sich eine Wohnfläche von ca. 140 m², die keine Wohnträume offenlassen wird.
Das Haus verfügt über insgesamt fünf Zimmer. Ein Wohnzimmer, zwei einladende Schlafzimmer, ein Gästezimmer sowie ein Büro (als Durchgangszimmer) die ausreichend Platz zur freien Entfaltung bieten.
Der im Wohnzimmer befindliche Kaminofen bietet an kalten Tagen ein besonderes Wohlfühlerlebnis.
Zudem werden Sie, nach Abschuss der Sanierungsarbeiten, zwei moderne Badezimmer finden, die den höchsten Komfort gewährleisten.
Die Immobilie zeichnet sich dann durch ihren fertigsanierten Zustand aus und bietet somit modernen Wohnkomfort in einer ansprechenden Umgebung.
Die umfangreiche Sanierung des Gebäudes, auf den KfW 70-Standard, entspricht fast den derzeitigen Erfordernissen eines heutigen Neubaus. Mit hohen Heizkosten ist daher, aufgrund der durchgeführten Dämmmaßnahmen sowie dem Einsatz einer Wärmepumpe, nicht zu rechnen. Außerdem führen die Photovoltaikanlage sowie der elektrische Speicher, im Vergleich zu einer herkömmlichen Heizung, in den nächsten Jahren zu weiteren Einsparungen bei der Wärmeerzeugung.
Die Verfügbarkeit des Hauses ist frühestens nach Abschluss der Sanierungsarbeiten, vermutlich ab Mitte August 2025, gegeben.
Haustierhaltung : keine
Nutzen Sie die Gelegenheit, in Rhauderfehn ein perfektes Zuhause in einer ruhigen und freundlichen Nachbarschaft zu beziehen. Wir freuen uns darauf, Ihnen dieses außergewöhnliche Objekt vorstellen zu dürfen!
Weitere Bilder folgen in Kürze.
Dieses Einfamilienhaus zur Miete, welches aktuell saniert wird, bietet Ihnen alles, was Sie sich wünschen können. Auf großzügigen ca. 1.029 m² Grundstücksgröße erstreckt sich eine Wohnfläche von ca. 140 m², die keine Wohnträume offenlassen wird.
Das Haus verfügt über insgesamt fünf Zimmer. Ein Wohnzimmer, zwei einladende Schlafzimmer, ein Gästezimmer sowie ein Büro (als Durchgangszimmer) die ausreichend Platz zur freien Entfaltung bieten.
Der im Wohnzimmer befindliche Kaminofen bietet an kalten Tagen ein besonderes Wohlfühlerlebnis.
Zudem werden Sie, nach Abschuss der Sanierungsarbeiten, zwei moderne Badezimmer finden, die den höchsten Komfort gewährleisten.
Die Immobilie zeichnet sich dann durch ihren fertigsanierten Zustand aus und bietet somit modernen Wohnkomfort in einer ansprechenden Umgebung.
Die umfangreiche Sanierung des Gebäudes, auf den KfW 70-Standard, entspricht fast den derzeitigen Erfordernissen eines heutigen Neubaus. Mit hohen Heizkosten ist daher, aufgrund der durchgeführten Dämmmaßnahmen sowie dem Einsatz einer Wärmepumpe, nicht zu rechnen. Außerdem führen die Photovoltaikanlage sowie der elektrische Speicher, im Vergleich zu einer herkömmlichen Heizung, in den nächsten Jahren zu weiteren Einsparungen bei der Wärmeerzeugung.
Die Verfügbarkeit des Hauses ist frühestens nach Abschluss der Sanierungsarbeiten, vermutlich ab Mitte August 2025, gegeben.
Haustierhaltung : keine
Nutzen Sie die Gelegenheit, in Rhauderfehn ein perfektes Zuhause in einer ruhigen und freundlichen Nachbarschaft zu beziehen. Wir freuen uns darauf, Ihnen dieses außergewöhnliche Objekt vorstellen zu dürfen!
Weitere Bilder folgen in Kürze.
Mehr anzeigen zum Thema Ausstattung Beschreibung
Ausstattung Beschreibung
Raumaufteilung:
Erdgeschoß: Wohnzimmer // Schlafzimmer // Küche ohne Einbauküche // Bad mit Wanne,
Handwaschbecken und WC // Hauswirtschaftsraum // Flur mit Treppenhaus // Flur
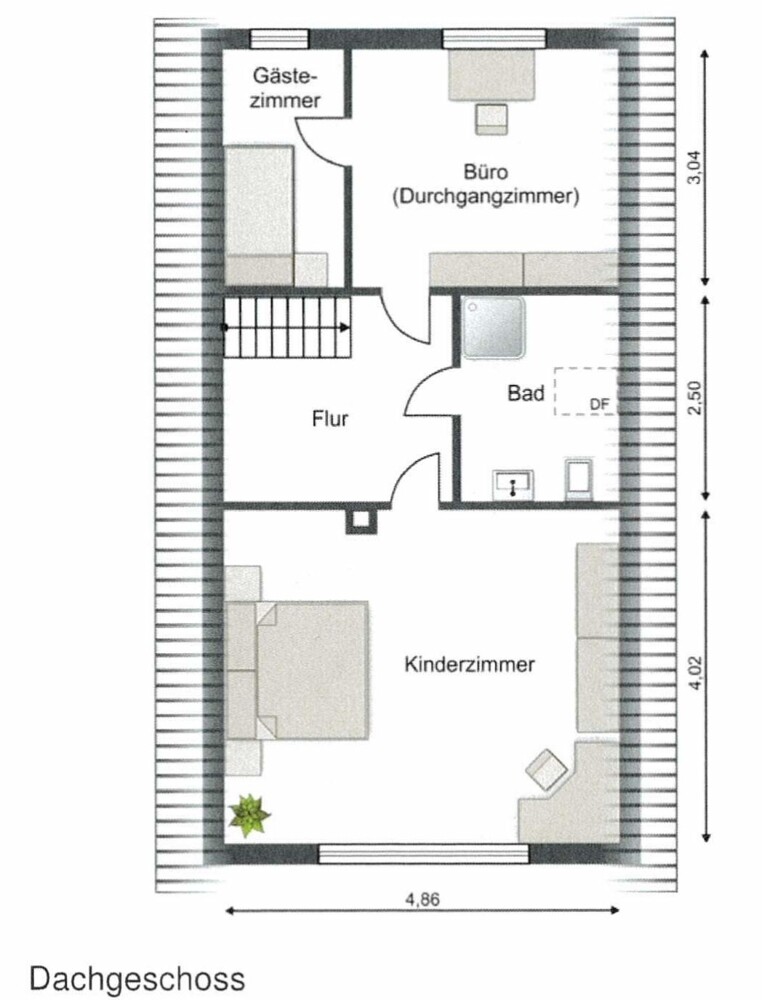
Obergeschoß: Kinderzimmer // Gästezimmer // Büro (Durchgangszimmer) // Bad mit Dusche, Handwaschbecken und WC // Flur
Kellerräume
Holzhütte
Garage mit neuem, elektrischem Garagentor inkl. Fernbedienung
Die Sanierung umfasst u.a.:
Fenster: 3-fach ISO-Verglasung
Heizung: Luft/Wasser Wärmepumpe
Kontrollierte Be- und Entlüftung
Dach: komplett neu, einschließlich Photovoltaikanlage mit Speicher
Außenwände: Hohlschichtdämmung
Innentüren: neu, in weißer Farbe
Hauseingangstür: neu
Die Bäder: neue Wand- und Bodenfliesen, neue Sanitäreinrichtung
Innenwände und Decken: neu (Raufaser, weiß gestrichen)
Fußböden: neu (Vinyl und Fliesen)
Bei Interesse schicken Sie uns bitte eine Emailanfrage! Aufgrund der hohen Nachfrage kann es zu zeitlichen Verzögerungen der Anfragenbearbeitung kommen. Wir bitten um Ihr Verständnis!
Ansprechpartner für unsere Mietangebote sind Frau Ammermann und Frau Behnen.
Arbeitszeiten: Mo., Di., + Do. in der Zeit von 15.00-18.00 Uhr, Di.+ Do. in der Zeit von 9.00-12.30 Uhr, Fr. in der Zeit von 15.00 -17.00 Uhr.
Erdgeschoß: Wohnzimmer // Schlafzimmer // Küche ohne Einbauküche // Bad mit Wanne,
Handwaschbecken und WC // Hauswirtschaftsraum // Flur mit Treppenhaus // Flur
Obergeschoß: Kinderzimmer // Gästezimmer // Büro (Durchgangszimmer) // Bad mit Dusche, Handwaschbecken und WC // Flur
Kellerräume
Holzhütte
Garage mit neuem, elektrischem Garagentor inkl. Fernbedienung
Die Sanierung umfasst u.a.:
Fenster: 3-fach ISO-Verglasung
Heizung: Luft/Wasser Wärmepumpe
Kontrollierte Be- und Entlüftung
Dach: komplett neu, einschließlich Photovoltaikanlage mit Speicher
Außenwände: Hohlschichtdämmung
Innentüren: neu, in weißer Farbe
Hauseingangstür: neu
Die Bäder: neue Wand- und Bodenfliesen, neue Sanitäreinrichtung
Innenwände und Decken: neu (Raufaser, weiß gestrichen)
Fußböden: neu (Vinyl und Fliesen)
Bei Interesse schicken Sie uns bitte eine Emailanfrage! Aufgrund der hohen Nachfrage kann es zu zeitlichen Verzögerungen der Anfragenbearbeitung kommen. Wir bitten um Ihr Verständnis!
Ansprechpartner für unsere Mietangebote sind Frau Ammermann und Frau Behnen.
Arbeitszeiten: Mo., Di., + Do. in der Zeit von 15.00-18.00 Uhr, Di.+ Do. in der Zeit von 9.00-12.30 Uhr, Fr. in der Zeit von 15.00 -17.00 Uhr.
Mehr anzeigen zum Thema Lage
Lage
Herzlich Willkommen in Rhauderfehn, einer Gemeinde im südlichen Ostfriesland mit zehn Ortsteilen und rd. 18.000 Einwohnern. Eine gewachsene Infrastruktur bietet zahlreiche Einkaufs- und Erlebnismöglichkeiten, in allen Ortsteilen Allgemein- und Fachmediziner sowie ein umfangreiches Angebot für Senioren. Familien loben besonders die Kinderfreundlichkeit und die optimale schulische Versorgung. Für unsere Senioren sind die gepflegte Umgebung, die zahlreichen kulturellen Veranstaltungen und die große Anzahl der Vereine und Gemeinschaften ein Argument für einen Wechsel nach Rhauderfehn. Rhauderfehntjer lieben die Geselligkeit und legen besonderen Wert auf die Pflege ihrer Eigenheime und der dazugehörigen Gartenanlagen. Bei zahlreichen Festen und Nachbarschaftstreffen werden Freundschaften gepflegt und Klöönschnack gehalten. Im Winter locken in den Restaurants und den Cafés ostfriesische Spezialitäten. Fordern Sie doch einfach unsere umfangreichen Info-Materialien an und lassen sich überzeugen! Weiteres auch auf unserer HOMEPAGE – www.duering-immobilien.de
Mehr anzeigen zum Thema Lage
Energieausweis
A+
< 30
A
30 – 50
B
50 – 75
C
75 – 100
D
100 – 130
E
130 – 160
F
160 – 200
G
200 – 250
H
> 250
- Nutzungsart
- Wohnen
- Baujahr lt. Energieausweis
- 2025
- Endenergiebedarf
- 33,8 kWh/(m²a)
- Energieausweis
- Bedarfsausweis
- Energieausweis gültig bis
- 21.11.2035
- Energieeffizienzklasse
- A
- wesentlicher Energieträger
- Luft/wasser Wärmepumpe